8119 33rd St #8119 ,Flex Space en Venta & Alquilar
8119 33rd St #8119 en Venta & Alquilar



















Precio $1,350,000.00
- Tama帽o de lote 3381
- A帽o de construcci贸n 1972
- Frente al agua
- Zip 33122
- Estilo
- Parking Descripci贸n Additional Spaces Available, Assigned, Guest
- Piscina Yes
- Estado Active
Descripci贸n
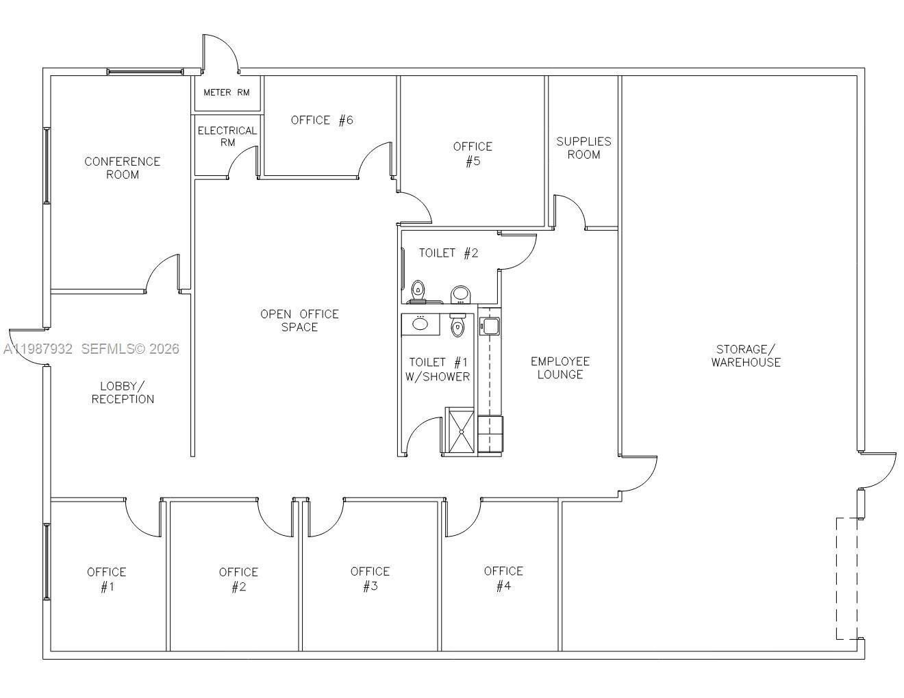
Exceptional end-cap unit featuring a welcoming reception area connected to conference room, 6 private offices, large open office floor plan, an employee lounge, supplies room, and warehouse area with 1 powered roll-up door. 2 restrooms, one of which includes a private shower, a practical amenity for active operational environments. * Office/Warehouse Ratio ±68% / 32% * 7 assigned parking spaces plus an additional space available at the rear roll-up door. The unit also benefits from direct frontage onto the shared guest parking lot serving the center. * Newly installed 240/120V, 200-Amp, 3-Phase electric service, providing robust capacity for a wide range of business operations. * 2 independent A/C systems provide full coverage and built-in redundancy. * Impact-rated windows and storefront entry door. * Insulated, hurricane-rated powered roll-up loading door for warehouse access. * 10 year structural recertification completed in 2022. BROCHURE AND FLOORPLAN ATTACHED
AIRWAYS CENTRE CONDO UNIT 8119 UNDIV 5% INT IN COMMON ELEMENTS OFF REC 24485-3096 COC 25004-1264 10 2006 1
Exceptional end-cap unit featuring a welcoming reception area connected to conference room, 6 private offices, large open office floor plan, an employee lounge, supplies room, and warehouse area with 1 powered roll-up door. 2 restrooms, one of which includes a private shower, a practical amenity for active operational environments. * Office/Warehouse Ratio ±68% / 32% * 7 assigned parking spaces plus an additional space available at the rear roll-up door. The unit also benefits from direct frontage onto the shared guest parking lot serving the center. * Newly installed 240/120V, 200-Amp, 3-Phase electric service, providing robust capacity for a wide range of business operations. * 2 independent A/C systems provide full coverage and built-in redundancy. * Impact-rated windows and storefront entry door. * Insulated, hurricane-rated powered roll-up loading door for warehouse access. * 10 year structural recertification completed in 2022. BROCHURE AND FLOORPLAN ATTACHED
City:Doral,Zoning:7300,List A O R:A-Miami Association of REALTORS,Stories:1,Latitude:25.8051573,List Price:1350000,Listing Id:A11987932,Longitude:-80.3279144,Mls Status:Active,Year Built:1972,Directions:Located 2 blocks South of Doral City Center.,Postal Code:33122,Street Name:33rd St,Unit Number:8119,Coordinates:1:25.8051573,Photos Count:19,Building Name:Airways International Center,Business Type:1:Industrial,Days On Market:32,Listing Terms:1:Conventional/Refinance,Lot Size Units:Square Feet,M I A M I R E_ Area:30,On Market Date:2026-03-23,Parcel Number:35-30-27-064-0150,Parking Total:7,Property Type:Commercial Sale,Stories Total:1,Street Number:8119,Public Remarks:Exceptional end-cap unit featuring a welcoming reception area connected to conference room, 6 private offices, large open office floor plan, an employee lounge, supplies room, and warehouse area with 1 powered roll-up door. 2 restrooms, one of which includes a private shower, a practical amenity for active operational environments. * Office/Warehouse Ratio ±68% / 32% * 7 assigned parking spaces plus an additional space available at the rear roll-up door. The unit also benefits from direct frontage onto the shared guest parking lot serving the center. * Newly installed 240/120V, 200-Amp, 3-Phase electric service, providing robust capacity for a wide range of business operations. * 2 independent A/C systems provide full coverage and built-in redundancy. * Impact-rated windows and storefront entry door. * Insulated, hurricane-rated powered roll-up loading door for warehouse access. * 10 year structural recertification completed in 2022. BROCHURE AND FLOORPLAN ATTACHED,Association Fee:1608,County Or Parish:Miami-Dade County,Expiration Date:2026-10-31,List Office Name:Miami Commercial Real Estate, LLC.,Standard Status:Active,Living Area Units:Square Feet,Major Change Type:Price Increase,Parking Features:1:Assigned,2:Guest,Postal Code Plus4:1005,Property Sub Type:Flex Space,State Or Province:FL,Street Dir Prefix:NW,Unparsed Address:8119 NW 33rd St # 8119, Doral FL 33122,Listing Agreement:Exclusive Agency,Building Area Total:3381,Building Area Units:Square Feet,Leasable Area Units:Square Feet,Lot Size Square Feet:3381,M I A M I R E_ Flood Zone:AH,Original List Price:1275000,Previous List Price:1275000,Public Survey Range:30,I D X Participation Y N:1,M I A M I R E_ Last Status:Temp Off Market,M I A M I R E_ N A R Rules Y N:1,Syndication Remarks:Exceptional end-cap unit featuring a welcoming reception area connected to conference room, 6 private offices, large open office floor plan, an employee lounge, supplies room, and warehouse area with 1 powered roll-up door. 2 restrooms, one of which includes a private shower, a practical amenity for active operational environments. * Office/Warehouse Ratio ±68% / 32% * 7 assigned parking spaces plus an additional space available at the rear roll-up door. The unit also benefits from direct frontage onto the shared guest parking lot serving the center. * Newly installed 240/120V, 200-Amp, 3-Phase electric service, providing robust capacity for a wide range of business operations. * 2 independent A/C systems provide full coverage and built-in redundancy. * Impact-rated windows and storefront entry door. * Insulated, hurricane-rated powered roll-up loading door for warehouse access. * 10 year structural recertification completed in 2022. BROCHURE AND FLOORPLAN ATTACHED,Listing Contract Date:2026-03-23,Originating System I D:miamire,Public Survey Section:27,Street Number Numeric:8119,Tax Legal Description:AIRWAYS CENTRE CONDO UNIT 8119 UNDIV 5% INT IN COMMON ELEMENTS OFF REC 24485-3096 COC 25004-1264 10 2006 1,Electric On Property Y N:1,M I A M I R E_ Current Price:1350000,Public Survey Township:30,M I A M I R E_ Municipal Code:35,M I A M I R E_ Total Mortgage:380000,Originating System Name:Miami Association of REALTORS庐,Association Fee Frequency:Monthly,M I A M I R E_ Internet Remarks:3,381 SF flex end-cap w/ 68% office area incl. 6 offices, open area, conf room, restrooms, impact windows and doors, 3-phase electric, 2 A/C systems.,M I A M I R E_ Num Loading Doors:1,M I A M I R E_ Parcel Number M L X:0150,M I A M I R E_ Street View Param:1$25.804397675785857$-80.32817058431797$5.42$13.33$1.00$KNZGjBaimNDIH6r4RuujOw,M I A M I R E_ Supplement Count:2,Contract Status Change Date:2026-03-23,Internet Address Display Y N:1,Internet Consumer Comment Y N:1,M I A M I R E_ Ok To Advertise List:No,M I A M I R E_ Subdivision Number:64,M I A M I R E_ Temp Off Market Date:2026-04-15,M I A M I R E_ Building Name Number:Airways International Center,M I A M I R E_ Agent Alternate Phone:305-807-5220,Internet Entire Listing Display Y N:1,M I A M I R E_ Address Internet Display:8119 NW 33rd St 8119,Internet Automated Valuation Display Y N:1,
- Precio $1,350,000.00
- Cambio de precio: 2026-04-29
- Tama帽o de lote sq. ft.
- Precio por p.c. $
- A帽o de construcci贸n 1972
- Frente al agua
- Ver
- Piscina Yes
- Estilo
- Construcci贸n
- Parking Descripci贸n Additional Spaces Available, Assigned, Guest
- Tipo de suelo
- Tipo de propiedad Commercial Sale
- Estado Active
- Listado 2026-04-29
- D铆as en el mercado 55
- Amueblado
- City Doral
- Zip 33122
- State Florida
- Subdivision
- Development Name Airways International Center
- HOA Fees 1608
- Taxes
- Taxes Year
En
Ru
Es