1361 155th Dr ,Industrial en Venta & Alquilar
1361 155th Dr en Venta & Alquilar





































































Precio $14.00
- Tama帽o de lote 151638
- A帽o de construcci贸n 1973
- Frente al agua
- Zip 33169
- Estilo
- Parking Descripci贸n
- Piscina Yes
- Estado Active
Descripci贸n
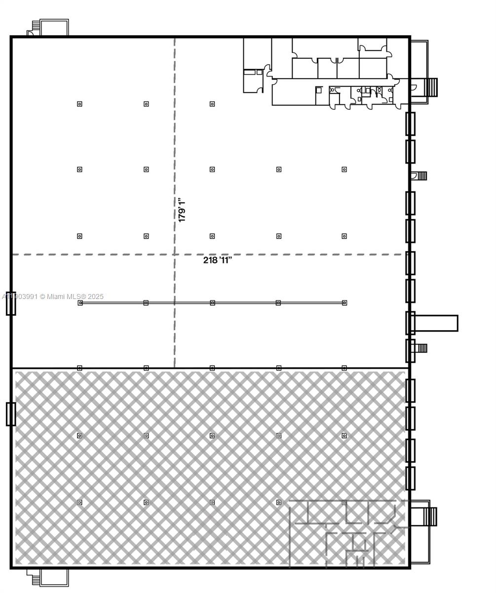
Located in the Sunshine State Industrial Park, this ±39,000 SF warehouse (±36,200 SF warehouse + ±2,800 SF office) offers modern functionality and unbeatable logistics access. With 22-foot clear height, heavy 3-phase power, 8 dock-height doors, and a secure fenced lot, this property is ideal for distribution, manufacturing, or logistics operations. The property offers immediate access to the Golden Glades Interchange, connecting SR-826 (Palmetto Expressway), Florida’s Turnpike, and I-95 — providing direct routes to Port of Miami, Miami International Airport, and key South Florida markets. Available May 1, 2026, with the sublease running through May 1, 2030 $15.50/SF Gross.
SUNSHINE STATE INDUSTRIAL PARK SEC TWO PB 78-58 LOTS 16 & 17 BLK 10 LOT SIZE 151638 SQ FT OR 15697-0004 1092 1 F/A/U 30-2114-008-1380 COC 26
Located in the Sunshine State Industrial Park, this ±39,000 SF warehouse (±36,200 SF warehouse + ±2,800 SF office) offers modern functionality and unbeatable logistics access. With 22-foot clear height, heavy 3-phase power, 8 dock-height doors, and a secure fenced lot, this property is ideal for distribution, manufacturing, or logistics operations. The property offers immediate access to the Golden Glades Interchange, connecting SR-826 (Palmetto Expressway), Florida’s Turnpike, and I-95 — providing direct routes to Port of Miami, Miami International Airport, and key South Florida markets. Available May 1, 2026, with the sublease running through May 1, 2030 $15.50/SF Gross.
City:Miami Gardens,Zoning:7100,List A O R:A-Miami Association of REALTORS,Latitude:25.917522,List Price:14,Listing Id:A11903991,Longitude:-80.2230856,Mls Status:Active,Year Built:1973,Postal Code:33169,Street Name:155th Dr,Coordinates:1:25.917522,Photos Count:69,Business Type:1:Warehouse Space,Days On Market:92,Leasable Area:39000,Lot Size Units:Square Feet,M I A M I R E_ Area:21,On Market Date:2025-10-28,Parcel Number:34-21-14-008-1380,Property Type:Commercial Sale,Street Number:1361,Public Remarks:Located in the Sunshine State Industrial Park, this ±39,000 SF warehouse (±36,200 SF warehouse + ±2,800 SF office) offers modern functionality and unbeatable logistics access. With 22-foot clear height, heavy 3-phase power, 8 dock-height doors, and a secure fenced lot, this property is ideal for distribution, manufacturing, or logistics operations. The property offers immediate access to the Golden Glades Interchange, connecting SR-826 (Palmetto Expressway), Florida’s Turnpike, and I-95 — providing direct routes to Port of Miami, Miami International Airport, and key South Florida markets. Available May 1, 2026, with the sublease running through May 1, 2030 $15.50/SF Gross.,County Or Parish:Miami-Dade County,Expiration Date:2030-05-01,List Office Name:Industrial Advisors,Standard Status:Active,Living Area Units:Square Feet,Major Change Type:New,Postal Code Plus4:5723,Property Sub Type:Industrial,State Or Province:FL,Street Dir Prefix:NW,Tax Annual Amount:154958,Unparsed Address:1361 NW 155th Dr, Miami Gardens FL 33169,Listing Agreement:Exclusive Agency,Building Area Total:64482,Building Area Units:Square Feet,Leasable Area Units:Square Feet,Lot Size Square Feet:151638,M I A M I R E_ Flood Zone:AE,X,Original List Price:14,Public Survey Range:21,Attribution Contact:305-975-3209,I D X Participation Y N:1,M I A M I R E_ For Lease Y N:1,M I A M I R E_ N A R Rules Y N:1,Syndication Remarks:Located in the Sunshine State Industrial Park, this ±39,000 SF warehouse (±36,200 SF warehouse + ±2,800 SF office) offers modern functionality and unbeatable logistics access. With 22-foot clear height, heavy 3-phase power, 8 dock-height doors, and a secure fenced lot, this property is ideal for distribution, manufacturing, or logistics operations. The property offers immediate access to the Golden Glades Interchange, connecting SR-826 (Palmetto Expressway), Florida’s Turnpike, and I-95 — providing direct routes to Port of Miami, Miami International Airport, and key South Florida markets. Available May 1, 2026, with the sublease running through May 1, 2030 $15.50/SF Gross.,Listing Contract Date:2025-10-28,Originating System I D:miamire,Public Survey Section:14,Street Number Numeric:1361,Tax Legal Description:SUNSHINE STATE INDUSTRIAL PARK SEC TWO PB 78-58 LOTS 16 & 17 BLK 10 LOT SIZE 151638 SQ FT OR 15697-0004 1092 1 F/A/U 30-2114-008-1380 COC 26,M I A M I R E_ Current Price:14,Public Survey Township:21,M I A M I R E_ Municipal Code:34,Originating System Name:Miami Association of REALTORS庐,M I A M I R E_ Internet Remarks:卤39,000 SF warehouse in Sunshine State Industrial Park with 8 dock doors, 22' height, and Golden Glades access. Available May 2026 $15.50/SF Gross,M I A M I R E_ Num Loading Doors:8,M I A M I R E_ Parcel Number M L X:1380,M I A M I R E_ Street View Param:1$25.917484$-80.223079$303.57$13.33$1.00$n1Bf1OZlQHSX3e4bxxIqqg,M I A M I R E_ Supplement Count:1,Contract Status Change Date:2025-10-28,Internet Address Display Y N:1,M I A M I R E_ Ok To Advertise List:No,M I A M I R E_ Subdivision Number:8,M I A M I R E_ Attribution Contact:305-975-3209,M I A M I R E_ Agent Alternate Phone:305-975-3209,M I A M I R E_ Maximum Leasable Sqft:39000,Internet Entire Listing Display Y N:1,M I A M I R E_ Address Internet Display:1361 NW 155th Dr,
- Precio $14.00
- Cambio de precio: 2025-10-28
- Tama帽o de lote sq. ft.
- Precio por p.c. $
- A帽o de construcci贸n 1973
- Frente al agua
- Ver
- Piscina Yes
- Estilo
- Construcci贸n
- Parking Descripci贸n
- Tipo de suelo
- Tipo de propiedad Commercial Sale
- Estado Active
- Listado 2025-10-28
- D铆as en el mercado 186
- Amueblado
- City Miami Gardens
- Zip 33169
- State Florida
- Subdivision
- Development Name
- HOA Fees
- Taxes 154958
- Taxes Year
En
Ru
Es