22790 Dixie Hwy ,Industrial для продажи & аренды
22790 Dixie Hwy для продажи & аренды






























Цена $23.50
- Размер территории 21000
- Год постройки 1965
- Вид на воду
- Zip 33170
- Стиль
- Парковка
- Бассейн Yes
- Статус Active
Описание
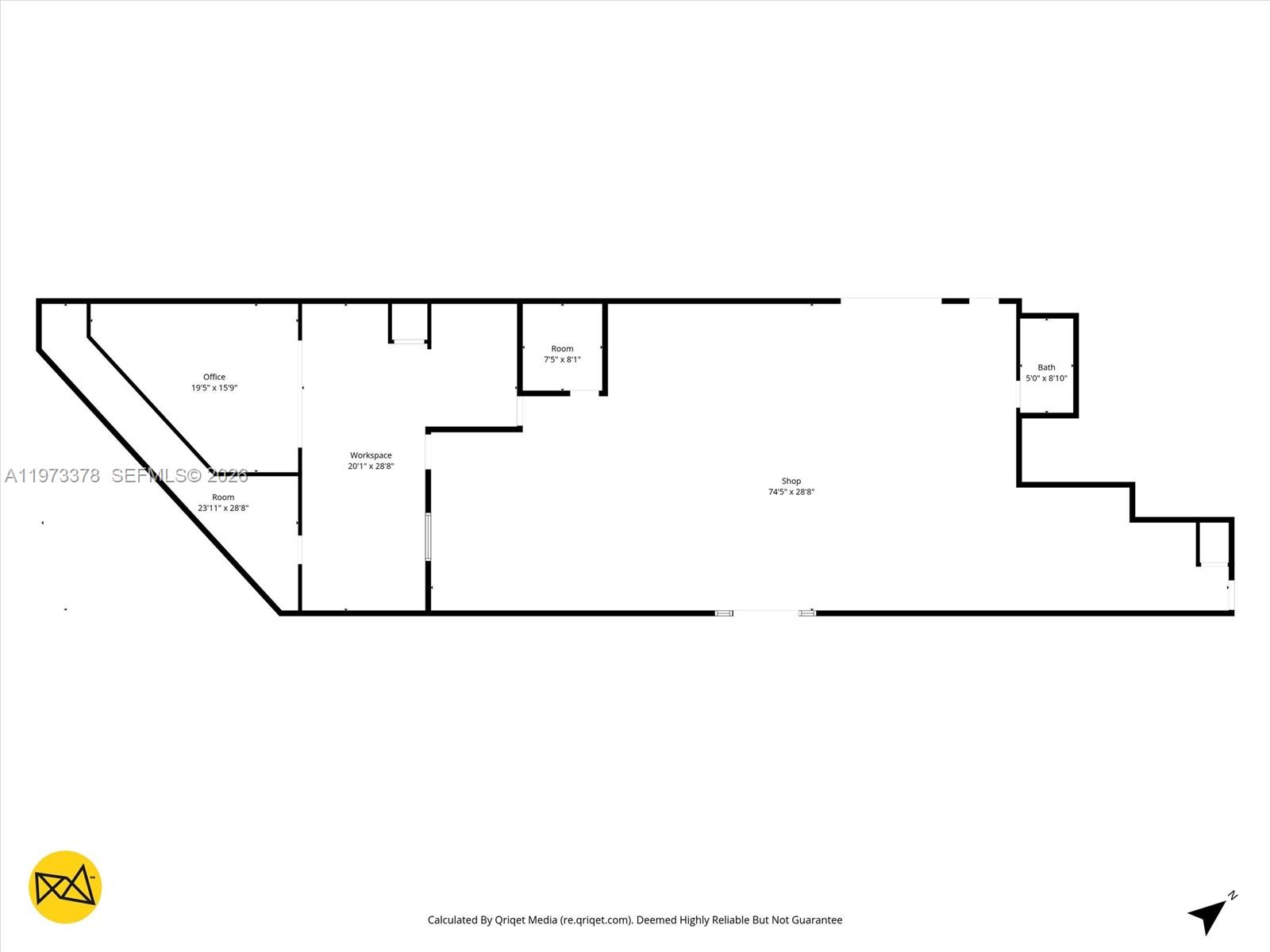
±3,500 SF office/warehouse available for lease in a well-located freestanding building on South Dixie Highway. The 8,242 SF fenced lot provides ample outdoor storage and secure gated access. The interior layout includes air-conditioned office space, half bath, and a large open warehouse area with dock-height loading, offering flexibility for storage, distribution, showroom, or light industrial operations. Excellent frontage and exposure on Dixie Hwy with convenient access to US-1 and the Florida Turnpike. Functional, visible, and versatile space in a high-demand corridor.
13 56 39 0.48 AC M/L TRIPLETTS ADD TO GOULDS PB 4-124 THAT PORT OF UNNUMBERED TR OF AMD MAP OF TRIPLETTIS ADDN TO GOULD & AN IRREGULAR SHAPE
±3,500 SF office/warehouse available for lease in a well-located freestanding building on South Dixie Highway. The 8,242 SF fenced lot provides ample outdoor storage and secure gated access. The interior layout includes air-conditioned office space, half bath, and a large open warehouse area with dock-height loading, offering flexibility for storage, distribution, showroom, or light industrial operations. Excellent frontage and exposure on Dixie Hwy with convenient access to US-1 and the Florida Turnpike. Functional, visible, and versatile space in a high-demand corridor.
City:Miami,Zoning:7100,List A O R:A-Miami Association of REALTORS,Latitude:25.5553171,List Price:23.5,Listing Id:A11973378,Longitude:-80.392763,Mls Status:Active,Year Built:1965,Postal Code:33170,Street Name:Dixie Hwy,Coordinates:1:25.5553171,Photos Count:30,Business Type:1:Showroom,Leasable Area:3500,Lot Size Units:Square Feet,M I A M I R E_ Area:69,On Market Date:2026-03-06,Parcel Number:30-69-13-010-0010,Property Type:Commercial Sale,Street Number:22790,Public Remarks:±3,500 SF office/warehouse available for lease in a well-located freestanding building on South Dixie Highway. The 8,242 SF fenced lot provides ample outdoor storage and secure gated access. The interior layout includes air-conditioned office space, half bath, and a large open warehouse area with dock-height loading, offering flexibility for storage, distribution, showroom, or light industrial operations. Excellent frontage and exposure on Dixie Hwy with convenient access to US-1 and the Florida Turnpike. Functional, visible, and versatile space in a high-demand corridor.,County Or Parish:Miami-Dade County,Expiration Date:2026-08-03,List Office Name:Avanti Way Commercial,Standard Status:Active,Living Area Units:Square Feet,Major Change Type:New,Postal Code Plus4:5356,Property Sub Type:Industrial,State Or Province:FL,Street Dir Prefix:S,Unparsed Address:22790 S Dixie Hwy, Miami FL 33170,Listing Agreement:Exclusive Right To Sell,Building Area Total:4685,Building Area Units:Square Feet,Leasable Area Units:Square Feet,Lot Size Square Feet:21000,M I A M I R E_ Flood Zone:X,Original List Price:23.5,Public Survey Range:69,I D X Participation Y N:1,M I A M I R E_ N A R Rules Y N:1,Syndication Remarks:±3,500 SF office/warehouse available for lease in a well-located freestanding building on South Dixie Highway. The 8,242 SF fenced lot provides ample outdoor storage and secure gated access. The interior layout includes air-conditioned office space, half bath, and a large open warehouse area with dock-height loading, offering flexibility for storage, distribution, showroom, or light industrial operations. Excellent frontage and exposure on Dixie Hwy with convenient access to US-1 and the Florida Turnpike. Functional, visible, and versatile space in a high-demand corridor.,Listing Contract Date:2026-03-06,Originating System I D:miamire,Public Survey Section:13,Street Number Numeric:22790,Tax Legal Description:13 56 39 0.48 AC M/L TRIPLETTS ADD TO GOULDS PB 4-124 THAT PORT OF UNNUMBERED TR OF AMD MAP OF TRIPLETTIS ADDN TO GOULD & AN IRREGULAR SHAPE,M I A M I R E_ Current Price:23.5,Public Survey Township:69,M I A M I R E_ Municipal Code:30,Originating System Name:Miami Association of REALTORS®,M I A M I R E_ Internet Remarks:±3,500 SF office/warehouse for lease in a freestanding building on S. Dixie Highway. ±8,242 SF fenced lot with outdoor storage & secure gated access.,M I A M I R E_ Parcel Number M L X:0010,M I A M I R E_ Street View Param:1$25.555298$-80.392781$289.28$13.33$1.00$ueA7jFhYKIYlit266R6rDA,Contract Status Change Date:2026-03-06,Internet Address Display Y N:1,M I A M I R E_ Ok To Advertise List:No,M I A M I R E_ Subdivision Number:10,M I A M I R E_ Agent Alternate Phone:786-512-3745,M I A M I R E_ Maximum Leasable Sqft:3500,Internet Entire Listing Display Y N:1,M I A M I R E_ Address Internet Display:22790 S Dixie Hwy,
- Цена $23.50
- Цена изменилась: 2026-02-27
- Размер территории кв.футов
- Цена за кв.фут $
- Год постройки 1965
- Вид на воду
- Вид
- Бассейн Yes
- Стиль
- Cтроительство
- Парковка
- Тип настила Ceramic Floor
- Тип объекта Commercial Sale
- Статус Active
- Опубликовано 2026-02-27
- Активен в листинге (дней) 47
- Меблированный
- City Miami
- Zip 33170
- State Florida
- Subdivision
- Development Name
- HOA Fees
- Taxes
- Taxes Year
En
Ru
Es