550 29th St ,Flex Space for Sale & Rent
550 29th St for Sale & Rent










Price $50,000.00
- Lot size 21000
- Year Build 1981
- Waterfront
- Zip 33127
- Style
- Parking Description
- Pool Yes
- Status Active
Description
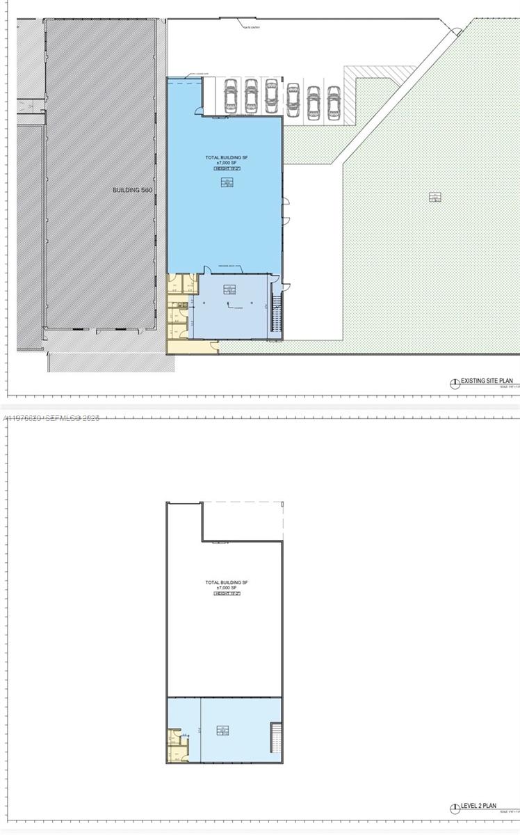
20,000-square-foot private, fully enclosed property located in the heart of Wynwood — Miami's premier cultural and creative district — offering 7,000 square feet of covered industrial space perfect for large corporate offices as well as engineered for high-impact brand activations, sponsor integrations, and production-forward environments.
25 53 41 NORTHERN BLVD TR PB 2-29 LOT 7 BLK 16 LOT SIZE 50.000 X 140 OR 17847-3221 1097 1 COC 25780-1803 07 2007 2
20,000-square-foot private, fully enclosed property located in the heart of Wynwood — Miami's premier cultural and creative district — offering 7,000 square feet of covered industrial space perfect for large corporate offices as well as engineered for high-impact brand activations, sponsor integrations, and production-forward environments.
City:Miami,Zoning:6100,List A O R:A-Miami Association of REALTORS,Latitude:25.8033454,List Price:50000,Listing Id:A11976620,Longitude:-80.2043743,Mls Status:Active,Year Built:1981,Postal Code:33127,Street Name:29th St,Coordinates:1:25.8033454,Photos Count:10,Days On Market:1,Leasable Area:21000,Lot Size Units:Square Feet,M I A M I R E_ Area:31,On Market Date:2026-03-04,Parcel Number:01-31-25-024-2650,Property Type:Commercial Sale,Street Number:550,Public Remarks:20,000-square-foot private, fully enclosed property located in the heart of Wynwood — Miami's premier cultural and creative district — offering 7,000 square feet of covered industrial space perfect for large corporate offices as well as engineered for high-impact brand activations, sponsor integrations, and production-forward environments.,County Or Parish:Miami-Dade County,Expiration Date:2026-08-01,List Office Name:Jordan Karp LLC,Standard Status:Active,Living Area Units:Square Feet,Major Change Type:New,Postal Code Plus4:3918,Property Sub Type:Flex Space,State Or Province:FL,Street Dir Prefix:NW,Unparsed Address:550 NW 29th St, Miami FL 33127,Listing Agreement:Exclusive Agency,M I A M I R E_ Blogging:1,Building Area Total:7000,Building Area Units:Square Feet,Leasable Area Units:Square Feet,Lot Size Square Feet:21000,M I A M I R E_ Flood Zone:AH,Original List Price:50000,Public Survey Range:31,I D X Participation Y N:1,M I A M I R E_ N A R Rules Y N:1,Syndication Remarks:20,000-square-foot private, fully enclosed property located in the heart of Wynwood — Miami's premier cultural and creative district — offering 7,000 square feet of covered industrial space perfect for large corporate offices as well as engineered for high-impact brand activations, sponsor integrations, and production-forward environments.,Listing Contract Date:2026-03-04,Originating System I D:miamire,Public Survey Section:25,Street Number Numeric:550,Tax Legal Description:25 53 41 NORTHERN BLVD TR PB 2-29 LOT 7 BLK 16 LOT SIZE 50.000 X 140 OR 17847-3221 1097 1 COC 25780-1803 07 2007 2,M I A M I R E_ Current Price:50000,M I A M I R E_ Owner Agent Y N:1,Public Survey Township:31,Originating System Name:Miami Association of REALTORS®,M I A M I R E_ Internet Remarks:Please contact broker for showing details,M I A M I R E_ Parcel Number M L X:2650,M I A M I R E_ Street View Param:1$25.803385$-80.204321$67.96$13.33$1.00$CAoSFkNJSE0wb2dLRUlDQWdJQ0VocWVtZVE.,Contract Status Change Date:2026-03-04,Internet Address Display Y N:1,M I A M I R E_ Ok To Advertise List:No,M I A M I R E_ Subdivision Number:24,M I A M I R E_ Agent Alternate Phone:305-610-1689,M I A M I R E_ Maximum Leasable Sqft:21000,Internet Entire Listing Display Y N:1,M I A M I R E_ Address Internet Display:550 NW 29th St,
- Price $50,000.00
- Price Change: 2026-03-04
- Lot size sq. ft.
- Price per sq.ft. $
- Year Build 1981
- Waterfront
- View
- Pool Yes
- Style
- Construction
- Parking Description
- Flooring Type
- Property Type Commercial Sale
- Status Active
- Listed 2026-03-04
- Days on Market 47
- Furnished
- City Miami
- Zip 33127
- State Florida
- Subdivision
- Development Name
- HOA Fees
- Taxes
- Taxes Year
En
Ru
Es