6175 167th St #G12 ,Industrial, Commercial Lease for Sale & Rent
6175 167th St #G12 for Sale & Rent









Price $3,500.00
- Lot size 0
- Year Build 1987
- Waterfront
- Zip 33015
- Style
- Parking Description Assigned
- Pool Yes
- Status Active
Description
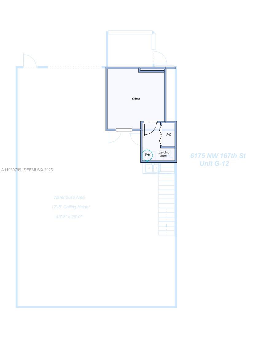
Air conditioned Office/Warehouse combination located in a gated complex off the Palmetto (SR 826) just blocks North of Miami Lakes. Unit is divided with 200 SF office, 60 SF half Bath and 1200 SF warehouse. UNIT AVAILABLE MARCH 1st 2026.
COMMERCIAL CENTER MIAMI CONDO #4 UNIT G12 UNDIV 1/80 INT IN COMMON ELEMENTS OFF REC 13131-5844 OR 13770-1597 0888 1
Commercial Park
Air conditioned Office/Warehouse combination located in a gated complex off the Palmetto (SR 826) just blocks North of Miami Lakes. Unit is divided with 200 SF office, 60 SF half Bath and 1200 SF warehouse. UNIT AVAILABLE MARCH 1st 2026.
City:Hialeah,Zoning:7700,List A O R:A-Miami Association of REALTORS,Stories:1,Latitude:25.9268772,Cooling Y N:1,List Price:3500,Listing Id:A11939709,Longitude:-80.3022687,Mls Status:Active,Ownership:Self Proprietor/Individual,Year Built:1987,Directions:From 557th Avenue, drive West on 167th ST (frontage road on the North side of the Palmetto) to complex entrance on right side, pass guard gate and make a left at building G.,Inclusions:Leases,Postal Code:33015,Street Name:167th St,Tenant Pays:1:Electricity,2:Janitorial Service,3:Telephone,4:Water,Unit Number:G12,Coordinates:1:25.9268772,Photos Count:9,Building Name:Commercial Center Miami,Business Type:1:Office/Warehouse Combination,Days On Market:30,Leasable Area:1328,Lot Size Units:Square Feet,M I A M I R E_ Area:20,On Market Date:2026-01-06,Parcel Number:30-20-13-023-0120,Property Type:Commercial Sale,Stories Total:1,Street Number:6175,Public Remarks:Air conditioned Office/Warehouse combination located in a gated complex off the Palmetto (SR 826) just blocks North of Miami Lakes. Unit is divided with 200 SF office, 60 SF half Bath and 1200 SF warehouse. UNIT AVAILABLE MARCH 1st 2026.,Structure Type:1:Industrial,County Or Parish:Miami-Dade County,Expiration Date:2026-06-30,List Office Name:United Real Estate Miami,Standard Status:Active,Living Area Units:Square Feet,M I A M I R E_ Num Bays:1,Major Change Type:New,Postal Code Plus4:4364,Property Sub Type:Industrial,State Or Province:FL,Street Dir Prefix:NW,Unparsed Address:6175 NW 167th St # G12, Hialeah FL 33015,Listing Agreement:Exclusive Right To Sell,Security Features:1:Security Gate,Year Built Details:Resale,Building Area Units:Square Feet,Leasable Area Units:Square Feet,Lease Considered Y N:1,M I A M I R E_ Flood Zone:X,M I A M I R E_ Num Floors:1,Original List Price:3500,Public Survey Range:20,I D X Participation Y N:1,M I A M I R E_ N A R Rules Y N:1,M I A M I R E_ Num Offices:1,Syndication Remarks:Air conditioned Office/Warehouse combination located in a gated complex off the Palmetto (SR 826) just blocks North of Miami Lakes. Unit is divided with 200 SF office, 60 SF half Bath and 1200 SF warehouse. UNIT AVAILABLE MARCH 1st 2026.,Listing Contract Date:2026-01-06,Originating System I D:miamire,Public Survey Section:13,Showing Instructions:Appointment Only,Call Listing Agent,Elect Lockbox-Call List Agent,Showing Assist,Street Number Numeric:6175,Tax Legal Description:COMMERCIAL CENTER MIAMI CONDO #4 UNIT G12 UNDIV 1/80 INT IN COMMON ELEMENTS OFF REC 13131-5844 OR 13770-1597 0888 1,M I A M I R E_ Current Price:3500,Public Survey Township:20,Construction Materials:1:Pre-Cast Concrete Construction,2:Stucco,M I A M I R E_ Municipal Code:30,Originating System Name:Miami Association of REALTORS®,M I A M I R E_ Internet Remarks:Air conditioned Office/Warehouse combination located in a gated complex off the Palmetto (SR 826) just blocks North of Miami Lakes.,M I A M I R E_ Parcel Number M L X:0120,M I A M I R E_ Showing Time Flag:1,M I A M I R E_ Street View Param:1$25.927364$-80.301977$116.76$13.33$1.00$7JbAcgXLzxWkqb7h_4WWEw,Contract Status Change Date:2026-01-06,Internet Address Display Y N:1,M I A M I R E_ Ok To Advertise List:No,M I A M I R E_ Subdivision Number:23,M I A M I R E_ Building Name Number:Commercial Center Miami,M I A M I R E_ Agent Alternate Phone:305-804-6270,M I A M I R E_ Maximum Leasable Sqft:1328,M I A M I R E_ Improvement Height C O M:1 Story,Internet Entire Listing Display Y N:1,M I A M I R E_ Address Internet Display:6175 NW 167th St G12,
- Price $3,500.00
- Price Change: 2026-01-06
- Lot size sq. ft.
- Price per sq.ft. $
- Year Build 1987
- Waterfront
- View
- Pool Yes
- Style
- Construction Concrete Block Construction, Pre-Cast Concrete Construction, Stucco
- Parking Description Assigned
- Flooring Type Tile
- Property Type Commercial Sale
- Status Active
- Listed 2026-01-06
- Days on Market 115
- Furnished
- City Hialeah
- Zip 33015
- State Florida
- Subdivision
- Development Name Commercial Center Miami
- HOA Fees
- Taxes
- Taxes Year
En
Ru
Es