667 29th St #Gallary ,Office for Sale & Rent
667 29th St #Gallary for Sale & Rent


Price $7,500.00
- Lot size 21000
- Year Build 1955
- Waterfront
- Zip 33127
- Style
- Parking Description
- Pool Yes
- Status Active
Description
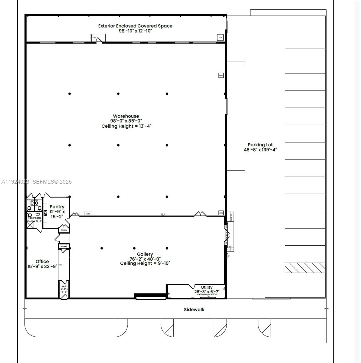
Approximately 18 parking spaces and one dock-high loading bay are available on site. The property is situated on 29th Street, a key gateway into Wynwood?one of Miami?s most iconic and vibrant neighborhoods. The remaining portion is an air-conditioned warehouse currently used for storage, manufacturing, and an outdoor woodworking area. The space can be divided into a gallery/showroom area and a warehouse area. This listing is the Gallary Space of 4000 sqft. Zoned D1 under the Miami-21 zoning code, the property is ideally suited for a high-end furniture showroom with on-site manufacturing or a similar user seeking to leverage the existing showroom and warehouse configuration.
NORTHERN BLVD TR PB 2-29 LOTS 16 17 & 18 BLK 14 LOT SIZE 21000 SQ FT M/L
Approximately 18 parking spaces and one dock-high loading bay are available on site. The property is situated on 29th Street, a key gateway into Wynwood?one of Miami?s most iconic and vibrant neighborhoods. The remaining portion is an air-conditioned warehouse currently used for storage, manufacturing, and an outdoor woodworking area. The space can be divided into a gallery/showroom area and a warehouse area. This listing is the Gallary Space of 4000 sqft. Zoned D1 under the Miami-21 zoning code, the property is ideally suited for a high-end furniture showroom with on-site manufacturing or a similar user seeking to leverage the existing showroom and warehouse configuration.
City:Miami,Zoning:7700,List A O R:A-Miami Association of REALTORS,Latitude:25.8039267,List Price:7500,Listing Id:A11924023,Longitude:-80.2065862,Mls Status:Active,Year Built:1955,Postal Code:33127,Street Name:29th St #Gallary,Coordinates:1:25.8039267,Photos Count:2,Business Type:1:Store/Warehouse Combination,Days On Market:1,Leasable Area:4107,Lot Size Units:Square Feet,M I A M I R E_ Area:31,On Market Date:2025-12-02,Parcel Number:01-31-25-024-2270,Property Type:Commercial Sale,Street Number:667,Public Remarks:Approximately 18 parking spaces and one dock-high loading bay are available on site. The property is situated on 29th Street, a key gateway into Wynwood?one of Miami?s most iconic and vibrant neighborhoods. The remaining portion is an air-conditioned warehouse currently used for storage, manufacturing, and an outdoor woodworking area. The space can be divided into a gallery/showroom area and a warehouse area. This listing is the Gallary Space of 4000 sqft. Zoned D1 under the Miami-21 zoning code, the property is ideally suited for a high-end furniture showroom with on-site manufacturing or a similar user seeking to leverage the existing showroom and warehouse configuration.,County Or Parish:Miami-Dade County,Expiration Date:2026-12-01,List Office Name:Compass Florida, LLC,Standard Status:Active,Living Area Units:Square Feet,Major Change Type:Price Increase,Postal Code Plus4:3826,Property Sub Type:Office,State Or Province:FL,Street Dir Prefix:NW,Tax Annual Amount:38835,Unparsed Address:667 NW 29th St #Gallary, Miami FL 33127,Listing Agreement:Exclusive Right To Sell,M I A M I R E_ Blogging:1,Building Area Total:12600,Building Area Units:Square Feet,Leasable Area Units:Square Feet,Lot Size Square Feet:21000,M I A M I R E_ Flood Zone:X,Original List Price:18,Previous List Price:18,Public Survey Range:31,I D X Participation Y N:1,M I A M I R E_ N A R Rules Y N:1,Showing Contact Type:1:Call Listing Office,Syndication Remarks:Approximately 18 parking spaces and one dock-high loading bay are available on site. The property is situated on 29th Street, a key gateway into Wynwood?one of Miami?s most iconic and vibrant neighborhoods. The remaining portion is an air-conditioned warehouse currently used for storage, manufacturing, and an outdoor woodworking area. The space can be divided into a gallery/showroom area and a warehouse area. This listing is the Gallary Space of 4000 sqft. Zoned D1 under the Miami-21 zoning code, the property is ideally suited for a high-end furniture showroom with on-site manufacturing or a similar user seeking to leverage the existing showroom and warehouse configuration.,Listing Contract Date:2025-12-02,Originating System I D:miamire,Public Survey Section:25,Showing Instructions:24 Hour Notice,Appointment Only,Call Listing Agent,Call Listing Office,Street Number Numeric:667,Tax Legal Description:NORTHERN BLVD TR PB 2-29 LOTS 16 17 & 18 BLK 14 LOT SIZE 21000 SQ FT M/L,M I A M I R E_ Current Price:7500,Public Survey Township:31,M I A M I R E_ Municipal Code:1,Originating System Name:Miami Association of REALTORS?,M I A M I R E_ Internet Remarks:Please contact listing broker Arthur for more information,M I A M I R E_ Parcel Number M L X:2270,M I A M I R E_ Street View Param:1$25.803944$-80.206479$182.40$13.33$1.00$CAoSF0NJSE0wb2dLRUlDQWdJQ2kyTUt0Z0FF,Contract Status Change Date:2025-12-02,Internet Address Display Y N:1,Internet Consumer Comment Y N:1,M I A M I R E_ Ok To Advertise List:No,M I A M I R E_ Subdivision Number:24,M I A M I R E_ Agent Alternate Phone:305-209-8866,M I A M I R E_ Maximum Leasable Sqft:4107,Internet Entire Listing Display Y N:1,M I A M I R E_ Address Internet Display:667 NW 29th St #Gallary,Internet Automated Valuation Display Y N:1,
- Price $7,500.00
- Price Change: 2025-12-03
- Lot size sq. ft.
- Price per sq.ft. $
- Year Build 1955
- Waterfront
- View
- Pool Yes
- Style
- Construction
- Parking Description
- Flooring Type
- Property Type Commercial Sale
- Status Active
- Listed 2025-12-03
- Days on Market 91
- Furnished
- City Miami
- Zip 33127
- State Florida
- Subdivision
- Development Name
- HOA Fees
- Taxes 38835
- Taxes Year
En
Ru
Es