17535 2nd Ave #108-109 ,Mixed Use, Warehouse Space for Sale & Rent
17535 2nd Ave #108-109 for Sale & Rent
































Price $2,799,000.00
- Lot size 9800
- Year Build 1956
- Waterfront
- Zip 33169
- Style
- Parking Description
- Pool Yes
- Status Active
Description
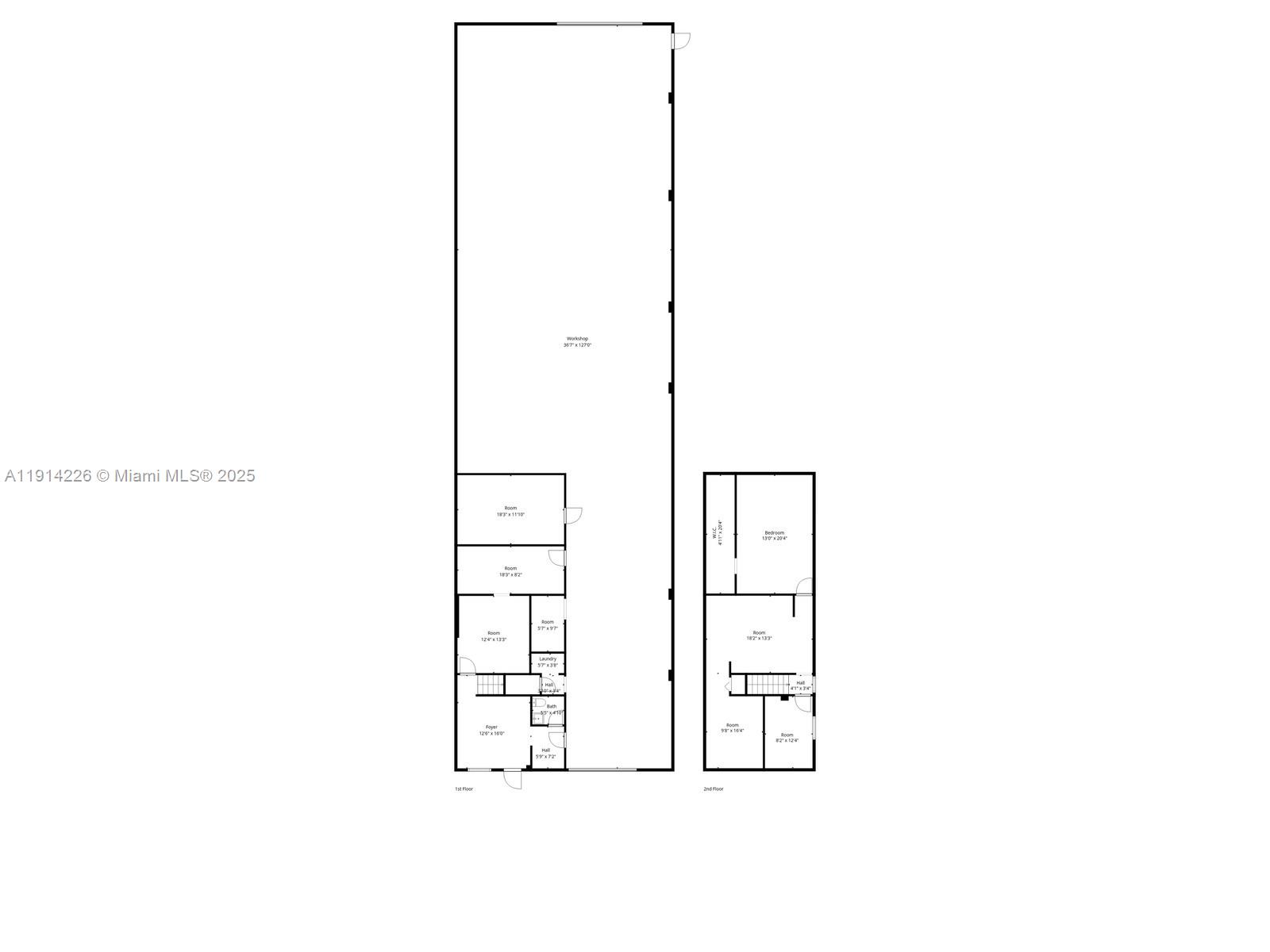
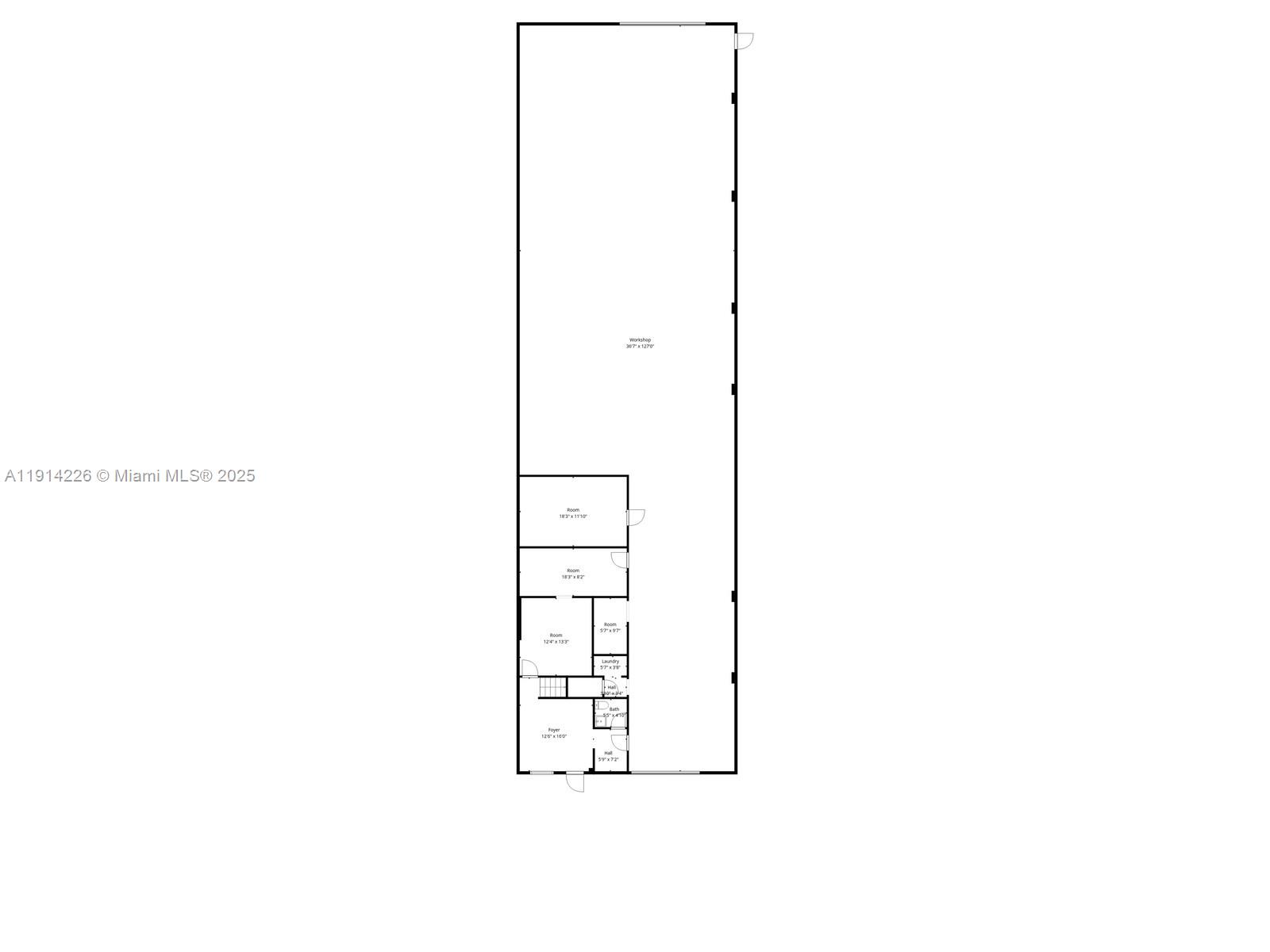
Nice, clean turn-key warehouse. Offering nearly 10,000 SF of versatile industrial space, this rare opportunity features two adjoining 4,900 SF bays within a standalone structure in a boutique industrial park. Constructed with durable twin-T concrete and equipped with 12’ roll-up doors, the building includes a partially open interior wall that allows easy flow between both sections. Located in Golden Glades Commerce Park—an established commercial condominium complex positioned at the crossroads of the Turnpike, I-95, 826, 441, and SR-9—the property benefits from exceptional regional connectivity. The park provides gated, fenced, and well-illuminated grounds with unrestricted 24/7 access.
GOLDEN GLADES COMMERCE PARK CONDO UNIT 108 UNDIV 8.60% INT IN COMMON ELEMENTS OFF REC 25932-1755
Nice, clean turn-key warehouse. Offering nearly 10,000 SF of versatile industrial space, this rare opportunity features two adjoining 4,900 SF bays within a standalone structure in a boutique industrial park. Constructed with durable twin-T concrete and equipped with 12’ roll-up doors, the building includes a partially open interior wall that allows easy flow between both sections. Located in Golden Glades Commerce Park—an established commercial condominium complex positioned at the crossroads of the Turnpike, I-95, 826, 441, and SR-9—the property benefits from exceptional regional connectivity. The park provides gated, fenced, and well-illuminated grounds with unrestricted 24/7 access.
City:Miami Gardens,Zoning:6100,List A O R:A-Miami Association of REALTORS,Latitude:25.9354929,List Price:2799000,Listing Id:A11914226,Longitude:-80.2048016,Mls Status:Active,Year Built:1956,Postal Code:33169,Street Name:2nd Ave,Unit Number:108-109,Coordinates:1:25.9354929,Photos Count:32,Days On Market:150,Lot Size Units:Square Feet,M I A M I R E_ Area:21,On Market Date:2025-11-17,Parcel Number:34-21-12-045-0080,Property Type:Commercial Sale,Street Number:17535,Public Remarks:Nice, clean turn-key warehouse. Offering nearly 10,000 SF of versatile industrial space, this rare opportunity features two adjoining 4,900 SF bays within a standalone structure in a boutique industrial park. Constructed with durable twin-T concrete and equipped with 12’ roll-up doors, the building includes a partially open interior wall that allows easy flow between both sections. Located in Golden Glades Commerce Park—an established commercial condominium complex positioned at the crossroads of the Turnpike, I-95, 826, 441, and SR-9—the property benefits from exceptional regional connectivity. The park provides gated, fenced, and well-illuminated grounds with unrestricted 24/7 access.,County Or Parish:Miami-Dade County,Expiration Date:2026-08-31,List Office Name:The Brokerage South Florida Real Estate, LLC.,Standard Status:Active,Living Area Units:Square Feet,Major Change Type:Price Decrease,Property Sub Type:Mixed Use,State Or Province:FL,Street Dir Prefix:NW,Tax Annual Amount:22390,Unparsed Address:17535 NW 2nd Ave # 109, Miami Gardens FL 33169,Listing Agreement:Exclusive Right To Sell,Building Area Total:9800,Building Area Units:Square Feet,Leasable Area Units:Square Feet,M I A M I R E_ Flood Zone:X,Original List Price:3200000,Previous List Price:3200000,Public Survey Range:21,I D X Participation Y N:1,M I A M I R E_ N A R Rules Y N:1,Syndication Remarks:Nice, clean turn-key warehouse. Offering nearly 10,000 SF of versatile industrial space, this rare opportunity features two adjoining 4,900 SF bays within a standalone structure in a boutique industrial park. Constructed with durable twin-T concrete and equipped with 12’ roll-up doors, the building includes a partially open interior wall that allows easy flow between both sections. Located in Golden Glades Commerce Park—an established commercial condominium complex positioned at the crossroads of the Turnpike, I-95, 826, 441, and SR-9—the property benefits from exceptional regional connectivity. The park provides gated, fenced, and well-illuminated grounds with unrestricted 24/7 access.,Listing Contract Date:2025-11-17,Originating System I D:miamire,Public Survey Section:12,Street Number Numeric:17535,Tax Legal Description:GOLDEN GLADES COMMERCE PARK CONDO UNIT 108 UNDIV 8.60% INT IN COMMON ELEMENTS OFF REC 25932-1755,M I A M I R E_ Current Price:2799000,Public Survey Township:21,M I A M I R E_ Municipal Code:34,M I A M I R E_ Total Mortgage:1960000,Originating System Name:Miami Association of REALTORS®,M I A M I R E_ Internet Remarks:Offering nearly 10,000 SF of versatile industrial space, this rare opportunity features two adjoining 4,900 SF bays in Miami Gardens.,M I A M I R E_ Parcel Number M L X:0080,M I A M I R E_ Street View Param:1$25.934664$-80.203792$205.23$13.33$1.00$eGAL4XHiRkcRmfNpgMO9ig,Contract Status Change Date:2025-11-17,Internet Address Display Y N:1,M I A M I R E_ Ok To Advertise List:No,M I A M I R E_ Subdivision Number:45,M I A M I R E_ Agent Alternate Phone:305-414-1692,Internet Entire Listing Display Y N:1,M I A M I R E_ Address Internet Display:17535 NW 2nd Ave 108-109,
- Price $2,799,000.00
- Price Change: 2025-12-01
- Lot size sq. ft.
- Price per sq.ft. $
- Year Build 1956
- Waterfront
- View
- Pool Yes
- Style
- Construction
- Parking Description
- Flooring Type
- Property Type Commercial Sale
- Status Active
- Listed 2025-12-01
- Days on Market 163
- Furnished
- City Miami Gardens
- Zip 33169
- State Florida
- Subdivision
- Development Name
- HOA Fees
- Taxes 22390
- Taxes Year
En
Ru
Es